Begleitung brandschutztechnischer Maßnahmen bei Dachsanierung
Erarbeiten und Überwachung brandschutztechnischer Lösungen während der Bauphase
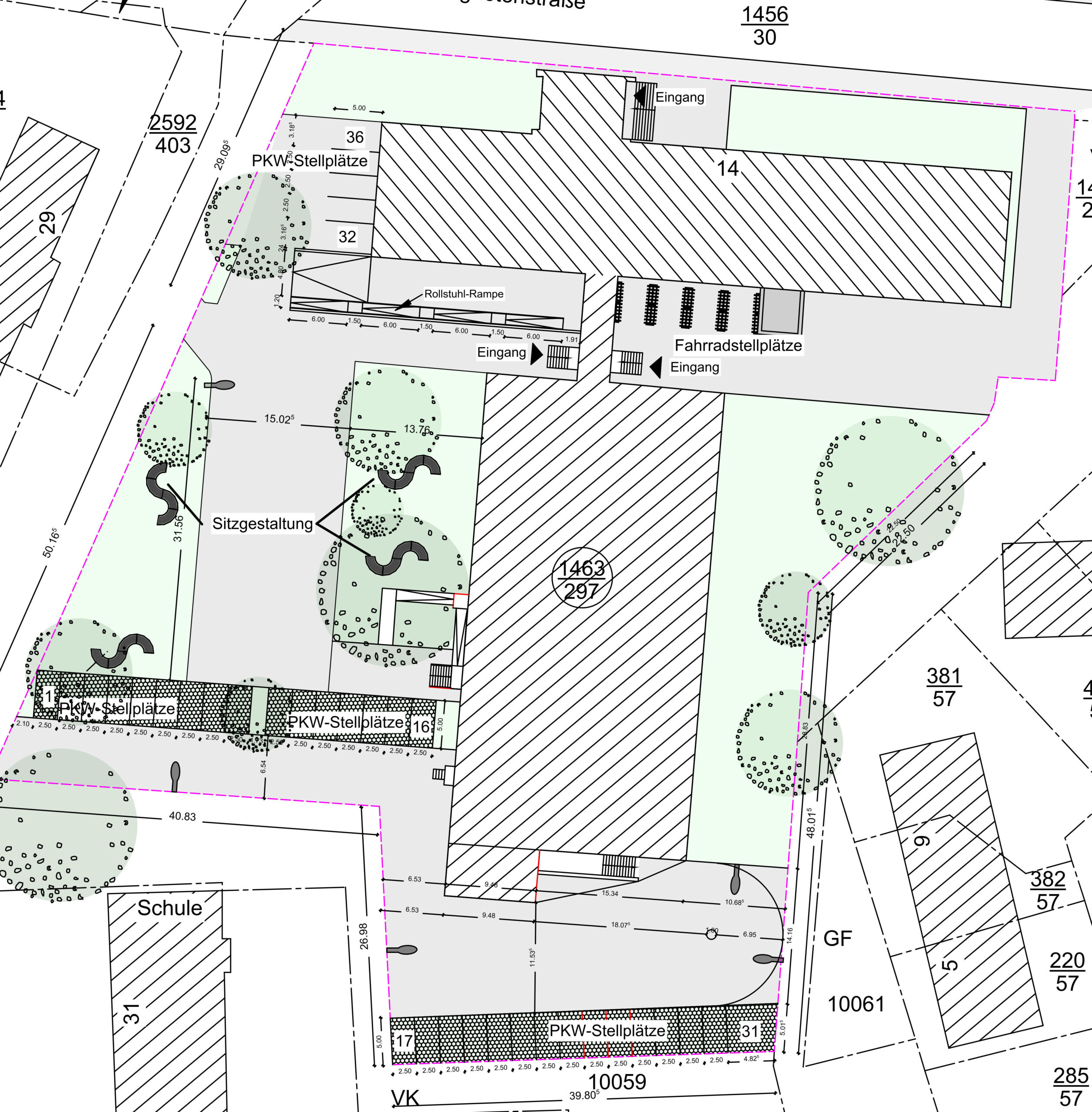
Neubau Wohnhaus mit Stadthäusern und Tiefgarage, GK 5
Bauplanung über die Leistungsphasen 1 bis 4 inkl. Einreichung Bauantrag mit Baulasten sowie Abstimmung mit allen relevanten Ämtern, Behörden und Versorgern (Stadtplanungsamt, Bauordnungsamt, Denkmalamt, Umweltamt, Energieversorger, öffentl. Verkehrsmittel, etc.)
Erarbeitung des Brandschutznachweises für Bauantrag
Planung der Sanierung und Umnutzung eines Rayon-Hauses
Teilabriss Wohngebäude und Neubau mit Sozialstation, GK 4
Erarbeiten eines Brandschutznachweises Leistungsphase 2 bis 4
stichprobenartige Bauüberwachung der brandschutzrelevanten Maßnahmen und Einbauten
Erstellen von Flucht- und Rettungsplänen
Einbau Hochregallager in bestehende Halle mit ca. 2.600 m², GK 3, Sonderbau, Industriebau
Brandschutzplanung für den Einbau und die Erweiterung eines Hochregallagers in zwei bestehende Hallen
Überwachung der Bauausführung
Erstellen von Flucht- und Rettungsplänen
Bauplanung
Projekte (Auszüge)
Neubau Wohn- und Geschäftshaus mit Tiefgarage, Neubau Stadthaus und Sanierung Rayon-Haus, GK 5 mit geschlossener Mittelgarage
Feststellen einschlägiger Rechtsgrundlagen und der wesentlichen materiellen rechtlichen Anforderungen aufgrund der Art, Nutzung, Bauweise, Größe, Nachbarschaft und des gestalterischen Konzepts sowie eventuell beanspruchter Abweichungen von bauordnungsrechtlichen Vorschriften
Erarbeiten der Grundzüge des Brandschutznachweises einschl. Möglichkeiten beim abwehrenden Brandschutz und Grundlagen für anlagentechnische Maßnahmen
Erstellen von Brandschutzskizzen zur Visualisierung der baulichen Maßnahmen und des anlagentechnischen Konzepts
Stichpunktartiges Zusammenstellen der Vorplanungsergebnisse